top of page
Create Your First Project
Start adding your projects to your portfolio. Click on "Manage Projects" to get started
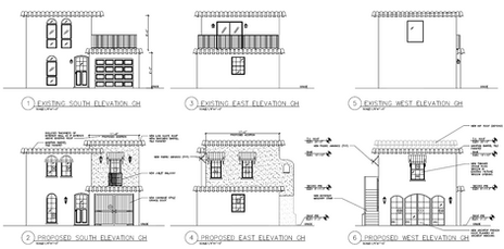
Mediterranean Revival - In Progress
Project type
Residential- In Progress
Date
2025
Location
Barcelona Road. El Cid Historic District, West Palm Beach FL
Scope of Work
This historically contributing Mediterranean revival single family residence is receiving a full interior renovation with a proposed rear 2-story addition. The detached accessory structure will also be getting a interior and exterior renovation with a proposed 2nd story addition for a guest suite. Stay tuned for progress on this historic Mediterranean revival in El Cid!




















bottom of page
